MACHE MARKETPLACE
Design Criteria: Design a retail space to bridge the gap between the developing Design District and Little Haiti caused by gentrification.

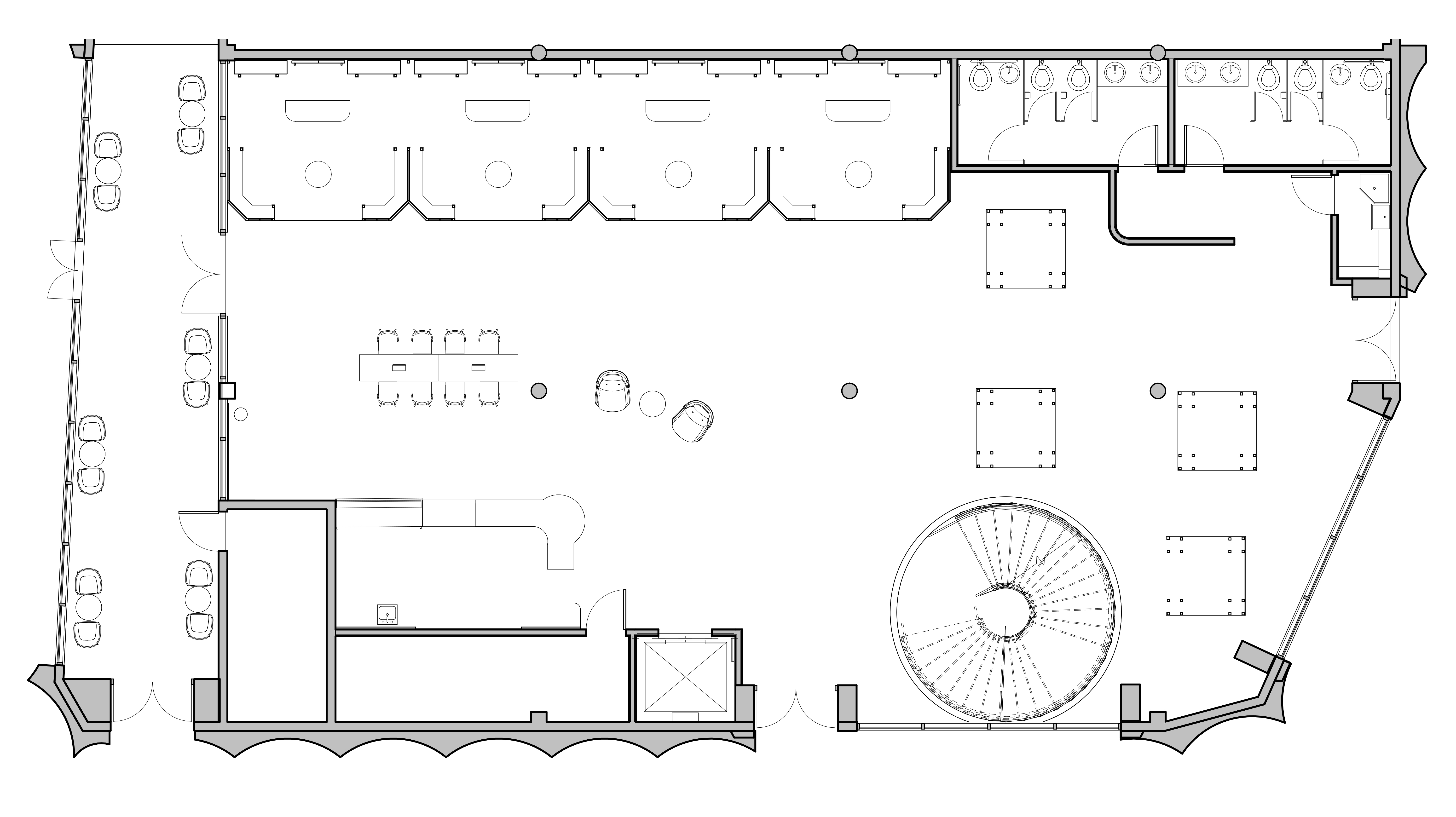
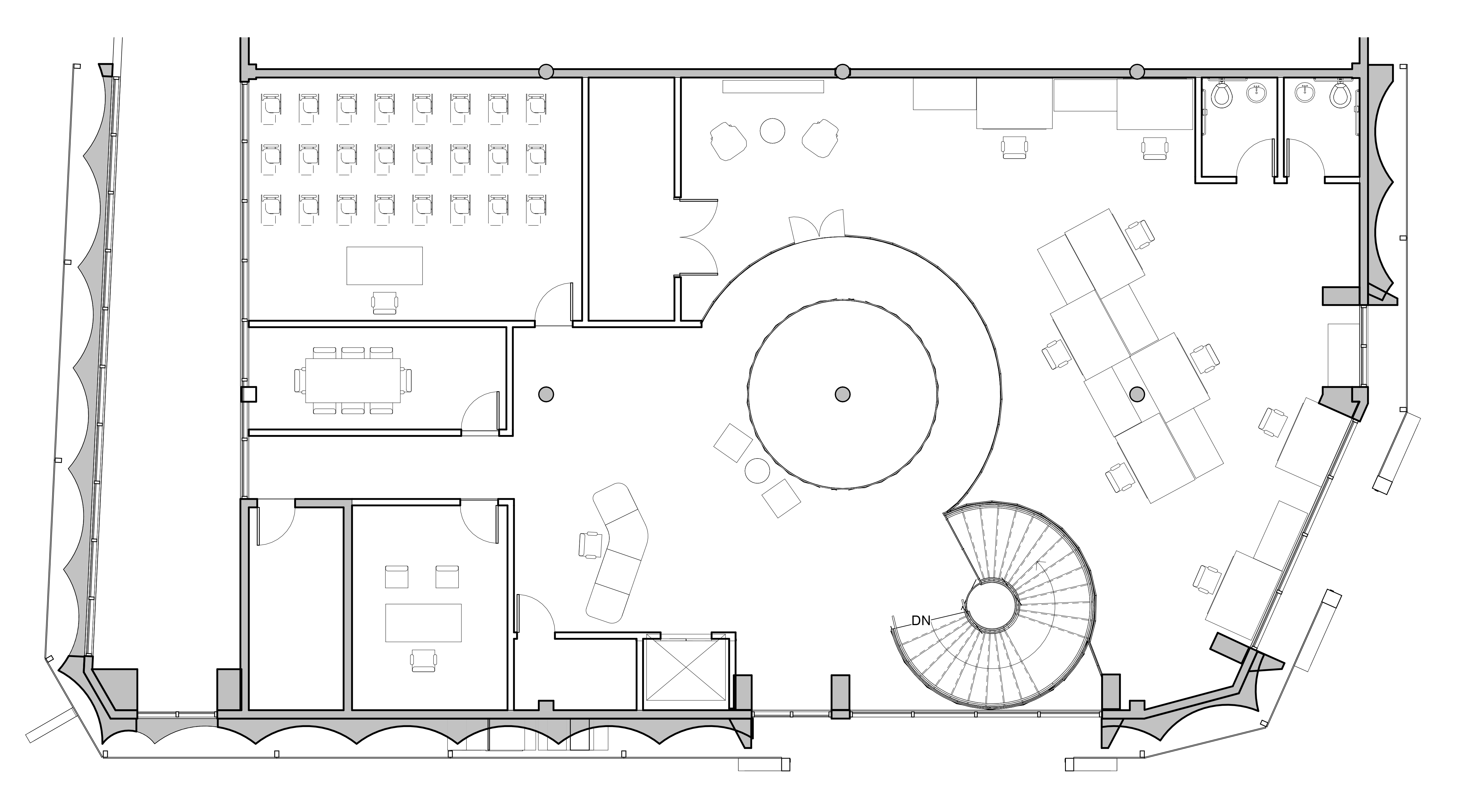
Mache (“market” in Haitian Creole) is envisioned as a place for local small business owners to create, learn, market, and sell their goods. The first floor has a fully functional cafe space for sale of drinks and baked goods; as well as several market stalls and kiosks designed to be used by these small businesses to display their creations. The second floor is designated for administrative spaces, a conference room, and classroom; while each small business is provided with a workshop studio space. This glass enclosed studio space at the top of the stairs allows store patrons to view the production of items they will be purchasing downstairs and an opportunity to interact with the business owners.
The design of the market stalls and branding borrows heavily from the “gingerbread” style made famous in Haiti and Miami’s Little Haiti area. By blending these architectural references and colors with the Design District’s unique style we hope to bridge the gap between these two seemingly disparate cultures.



